• 网站首页
  • 公司简介
  • 产品展示
  • 产品目录
  • 企业动态
  • 联系我们
  • 电子邮局

产品展示

  • 电动润滑泵
  • 手(脚)动润滑泵
  • 加油泵
  • 双线分配器
  • 单线分配器
  • 换向阀、操纵阀及其附件
  • 稀油润滑装置及稀油站
  • 稀油润滑元件
  • 管件部分
  • 油气润滑元件

联系方式

电话:0513-83325673 传真:0513-83119878 手机:13862978163 地址:江苏省启东市汇龙镇中央河中路691号E-mail:13862978163@126.com
 
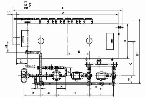
XHZ型稀油润滑装置 (0.5MPa)
 
<< 上一页 下一页   
XHZ-160~XHZ-500地基尺寸
型号
A
B
C
C1
地脚螺栓d
E
F
H
XHZ-160
3940
1800
1275
1250
M16
1000
1000
140
XHZ-200
XHZ-250
5300
1900
1404
1442
M16
1090
1100
160
XHZ-315
XHZ-400
6200
2100
1532
1536
M16
930
1200
180
XHZ-500
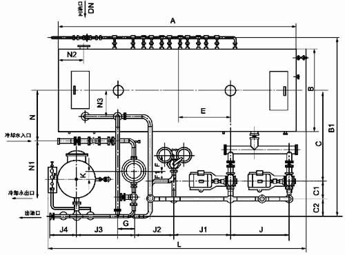
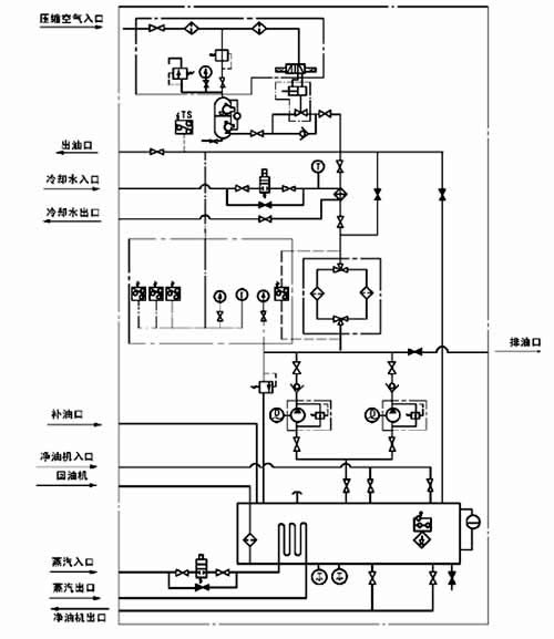
图1-2-7 XHZ-630~XZ-2000 型原理图
XHZ-630~XHZ-2000 外形尺寸
型号
A
B
B1
C
C1
E
F
G
H
H1
H2
H3
XHZ-630
6500
2180
3890
2100
500
1520
505
860
1700
1470
150
3930
XHZ-800
7000
2360
4550
2580
650
1500
700
800
1800
1470
2350
3255
XHZ-1000
7500
2500
4850
2650
600
1700
820
1250
1900
1470
235
3855
XHZ-1250
8100
2750
5125
2800
5500
1767
750
1266
2100
1790
235
4455
XHZ-1600
8800
3000
5500
3000
700
1750
900
1850
2320
1970
235
3320
XHZ-2000
9700
3080
5600
3200
660
2150
1000
1420
2500
2150
235
3970
 
型号
H4
H5
H6
H7
H8
J
J1
J2
J3
K
L
L1
N
N1
P
S
S1
T
DN
XHZ-630
3482
1644
880
678
2550
1600
2100
1030
1070
570
6730
200
280
790
300
150
100
322
250
XHZ-800
2720
1800
1280
728
300
1600
2100
1130
1470
800
7000
300
300
880
320
30
40
570
250
XHZ-1000
3320
1820
1086
895
300
1850
2420
1900
1150
800
8000
300
350
850
350
55
26
360
300
XHZ-1250
3920
1850
1132
895
300
1966
2160
1333
1227
1000
8300
300
400
1075
350
27
12
427
300
XHZ-1600
3300
2150
1240
915
320
2500
2800
1840
1300
1000
9200
300
400
1100
400
67
120
427
350
XHZ-2000
3375
2240
1252
810
300
2550
3350
1800
1543
1000
9260
300
350
1090
400
32
132
537
400
 
图1-2-7 XHZ-630~XZ-2000 型原理图
图1-2-8 XHZ-630~XHZ-2000 型地基图
型号
A
B
C
C1
C2
C3
D
D1
地脚螺栓
d
d1
XHZ-630
6500
2180
1502
1600
580
2100
350
522
M16
M24
XHZ-800
7000
2360
1494
1600
600
2600
600
720
M16
M36
XHZ-1000
7500
2500
1688
1850
720
3050
600
1015
M16
M36
XHZ-1250
8100
2750
1757
1966
1393
2560
600
720
M20
M36
XHZ-1600
8800
3000
1741
2500
1050
3140
600
930
M20
M36
XHZ-2000
9700
3080
2075
2550
1200
3343
650
930
M20
M36
 
型号
E
F
G
H1
H2
J
K
L
N
R
XHZ-630
550
2100
570
15
100
500
350
2850
780
250
XHZ-800
799
2580
640
30
40
500
390
3100
820
400
XHZ-1000
779
2650
585
55
26
550
390
3450
890
340
XHZ-1250
817
2800
680
27
12
620
450
3646
930
400
XHZ-1600
817
3000
815
67
120
660
540
5206
1092
400
XHZ-2000
938
3260
1000
32
133
730
570
4500
1120
450
 
型号
A
B
B1
C
C1
C2
E
F
F1
G
H
H3
H4
H5
H6
H7
H8
XHZ-630A
6500
2180
4660
2380
520
470
1520
400
260
450
1700
3930
3482
2250
1900
1470
678
XHZ-800A
7000
2360
5000
2690
650
260
1500
400
250
630
1800
3255
2720
2300
1900
1470
728
XHZ-1000A
7500
2500
5200
2900
700
1700
170
520
750
1900
3855
3320
2450
2100
1650
800
XHZ-1250A
8100
2750
5650
3350
640
100
2000
300
750
1150
2100
4455
3920
2800
2200
1790
892
XHZ-1600A
8800
3000
5950
3400
700
100
1950
450
650
880
2320
4280
3900
2850
2150
1970
915
XHZ-2000A
9700
3080
6830
3890
870
2400
370
350
1030
2500
5100
4800
3300
2640
2150
1090
 
型号
H9
H10
J
J1
J2
J3
J4
K
N
N1
N2
N3
P
S
S1
L
DN
XHZ-630A
300 150 1550 1550 1130 1110 740 260 1260 1345 280 790 200 15 100 7000 250
XHZ-800A
300 235 1600 1500 1550 18550 760 100 1560 1480 300 880 320 30   7650 250
XHZ-1000A
300 235 1850 1900 1700 1550 900 320 1390 1600 350 850 350 55 26 8200 300
XHZ-1250A
300 235 1800 1800 1800 1950 800 300 1770 1750 340 1075 350 27 100 8750 300
XHZ-1600A
320 235 2100 1950 2000 2200 700 300 1930 1825 400 1100 400 67 120 9950 350
XHZ-2000A
320 235 2370 2170 2200 2200 870 350 2030 2800 420 1090 450 320 133 10300 400
 
图1-2-11 XHZ-630A~XHZ-2000A 型地基图
 
<< 上一页 下一页   
   
网站首页 公司简介 产品展示 产品目录 企业动态 联系方式
电话:0513-83325673 传真:0513-83119878  手机:13862978163       
地址:江苏省启东市汇龙镇中央河中路691号 邮编:226200  E-mail:13862978163@126.com 
版权所有:南通沃尔驰石化工程有限公司