• 网站首页
  • 公司简介
  • 产品展示
  • 产品目录
  • 企业动态
  • 联系我们
  • 电子邮局

产品展示

  • 电动润滑泵
  • 手(脚)动润滑泵
  • 加油泵
  • 双线分配器
  • 单线分配器
  • 换向阀、操纵阀及其附件
  • 稀油润滑装置及稀油站
  • 稀油润滑元件
  • 管件部分
  • 油气润滑元件

联系方式

电话:0513-83325673 传真:0513-83119878 手机:13862978163 地址:江苏省启东市汇龙镇中央河中路691号E-mail:13862978163@126.com
 
CLQ型磁过滤器(0.1MPa)
一、使用条件
  CLQ型磁过滤器适用于稀油润滑系统,它安装在稀油站回油管的末端,稀油润滑系统的回油经过磁过滤器流进油箱,它能滤出其它过滤器无法滤出的细小磁性杂质。
  经过磁过滤器的油流速度推荐为0.23~0.59m/s。
  NR-93 磁串为磁过滤器的磁芯。
二、技术参数
型号
公称压力MPa
公称通径DN(mm)
公称流量L/min
重量kg
CLQ-25
0.1
25
10
10
CLQ-50
50
63
29
CLQ-80
80
125
57
CLQ-125
125
250
77
CLQ-150
150
400
105
CLQ-200
200
630
177
CLQ-250
250
1000
248
CLQ-300
300
1600
417
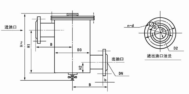
三、外形尺寸
型号
DN
D
D1
D2
D3
H≈
H1
H2
B
d
n
b
CLQ-25
25
115
85
65
150
405
250
50
140
14
4
18
CLQ-50
50
160
125
100
190
558
360
65
180
18
4
18
CLQ-80
80
195
160
135
290
605
355
80
230
18
4
20
CLQ-125
125
245
210
185
330
665
390
105
265
18
8
24
CLQ-150
150
280
240
210
400
700
410
120
300
23
8
24
CLQ-200
200
335
295
265
505
770
435
150
355
23
8
24
CLQ-250
250
390
350
320
600
900
525
180
425
23
12
26
CLQ-300
300
440
400
368
756
1045
635
230
500
23
12
28
  连接法兰按JB 81-59的规定(PN=1MPa)
四、标记示例
  公称通径为50mm 的磁过滤器
  CLQ-50  过滤器
网站首页 公司简介 产品展示 产品目录 企业动态 联系方式
电话:0513-83325673 传真:0513-83119878  手机:13862978163       
地址:江苏省启东市汇龙镇中央河中路691号 邮编:226200  E-mail:13862978163@126.com 
版权所有:南通沃尔驰石化工程有限公司